House in Faiha
Description
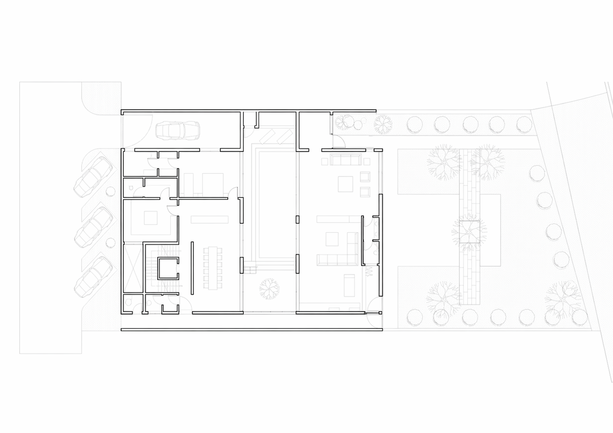
The house in Faiha is home to a retired Kuwaiti couple and their four adult children in different stages of their lives. The villa features a full basement with sheltered parking for six cars, built on 500 square metres of land with a prominent street offset in Al Faiha, Kuwait. The basement also accommodates the living quarters for staff, along with other service areas.
House in Faiha
House in Faiha 1
House in Faiha 2
House in Faiha 3
House in Faiha 4
House in Faiha 5
House in Faiha 6
House in Faiha 7
House in Faiha 8
House in Faiha 9
House in Faiha 10
House in Faiha 11
House in Faiha 12
House in Faiha 13
House in Faiha 14
House in Faiha 15
House in Faiha 16
House in Faiha 17
House in Faiha 18
House in Faiha 19
House in Faiha 20
House in Faiha 21
House in Faiha 22
House in Faiha 23
House in Faiha 24
Status
Built
Location
Al Faiha, Kuwait
Year
2022
Typology
Residential
Site Area
500 m²
Team
Hend Amatrouk, Gijo Paul George, Abdul Rashed, Rui Goncalves, Mani Kuruvila
INFO

House in Faiha

Location
Al Faiha, Kuwait
Year
2022
Status
Built
Team
Hend Amatrouk, Gijo Paul George, Abdul Rashed, Rui Goncalves, Mani Kuruvila
The house in Faiha is home to a retired Kuwaiti couple and their four adult children in different stages of their lives. The villa features a full basement with sheltered parking for six cars, built on 500 square metres of land with a prominent street offset in Al Faiha, Kuwait. The basement also accommodates the living quarters for staff, along with other service areas.
Swipe up for info